GEWERBEBAU AM GÜRZENICH


Via Culturalis

Standort

Köln

Grösse

20.800qm

LPH HOAI

LP 1-3

Status

Konzept

Status

2010

Bauherr

Gewerblich

 

KOSTEN – FUNKTION – DESIGN

Diese Planung war ein Beitrag zu einem geladenen Realisierungswettbewerb. Auch im Wettbewerb sind uns höchste Ansprüche an optimale Gewichtung von Kosten, Funktion und Design wichtig.

 

IMPRESSIONEN

Mit Klick auf das Bild erscheint das nächste Bild

Fassade

Über dem Sockelgeschoss präsentiert sich die Fassade als illuminierte Säulenhalle aus weißem Glas.

 

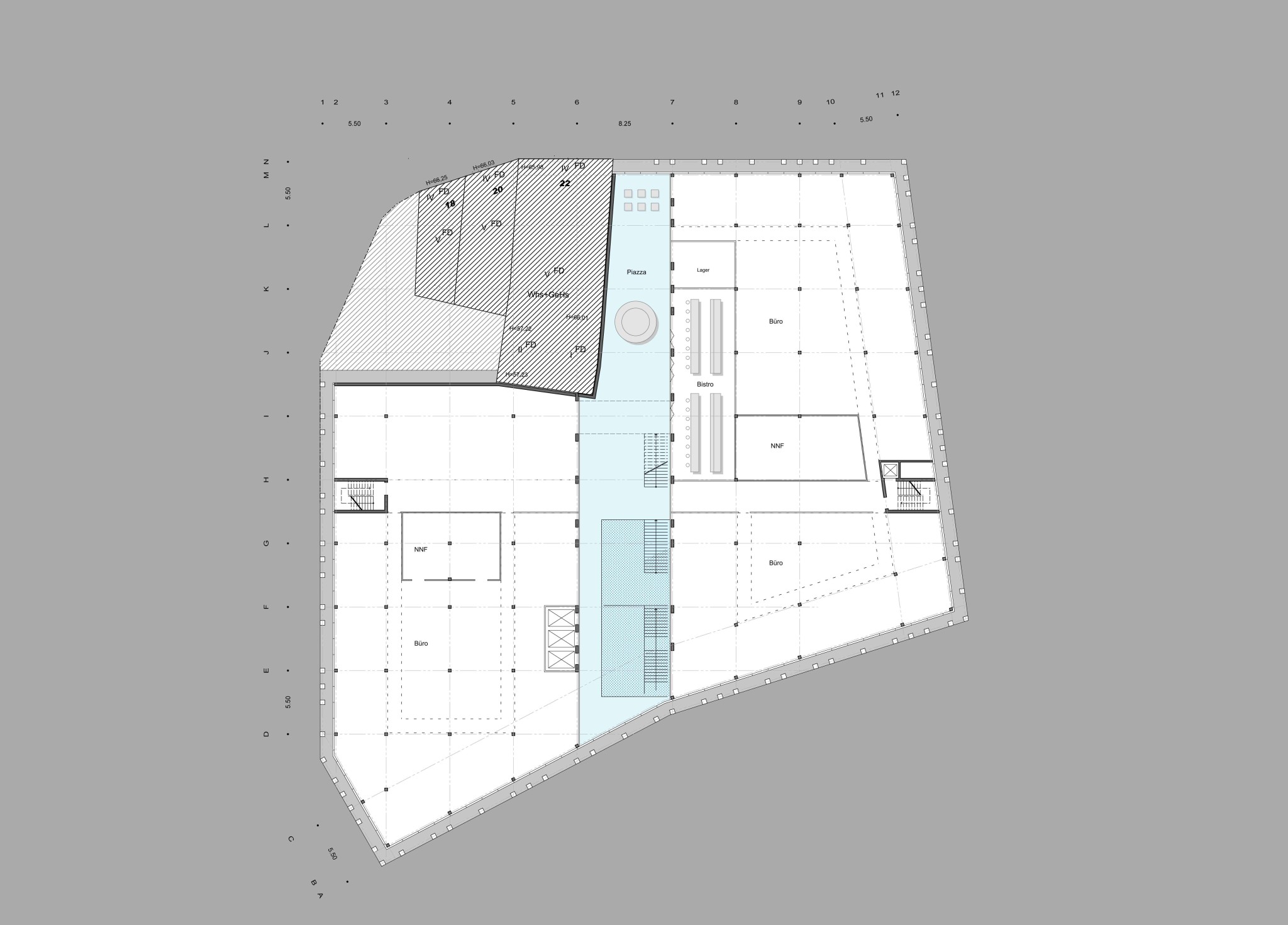
Gebäudestruktur

Auf gegebener Parzelle liegt der Kubus mittig auf der stadtgeschichtlichen Achse Via Culturalis.

Diese tritt in der inneren Gebäudestruktur wieder in Form einer verglasten Magistrale in Erscheinung und richtet den Blick auf einige der wichtigsten Kölner Denkmäler.

Die, durch diese Zerschneidung entstehenden Blocks, bieten eine Rasterstruktur für sämtliche Bürotypen (Zelle, Kombi, Großraum) und sind sogar als Wohnfläche nutzbar.


 

WHB-LOGO_Farbe