Einfamilienhaus in Stommeln


Nordstraße

Standort

Stommeln

Grösse

330qm

LPH HOAI

LP 1-6

Status

Realisiert

Jahr

2015

Bauherr

Privat

 

KOSTEN – FUNKTION – DESIGN

Die vorgefundene Bausubstanz ließ nur einen fast vollständigen Neubau zu. Alleine das intakte Kellergeschoss mit Gründung konnte nach Prüfung in diesem Verkaufsobjekt planerisch übernommen werden.

 

IMPRESSIONEN NACH FERTIGSTELLUNG

Mit Klick auf das Bild erscheint das nächste Bild

Der Hauseingang wird hier bündig als Tapetentür in der überkragenden Front eingepasst und unterstreicht die minimalistische Architektursprache.

 

VORHER | NACHHER

Bewegen Sie den Kreis mit Pfeilen nach rechts oder links

 

EINFÜGUNG

Trotz der Vorgabe mit einem Flachdach zu planen, gelingt es entwurflich, sich neben überwiegender Nachbarschaft mit Steildächern in die Umgebung einzufügen. Dies gelingt, in dem Bezüge, wie Trauf- und Firsthöhe, Dachüberstand oder Hell-Dunkel-Kontrast, an der Gebäudehülle hergestellt werden.

 

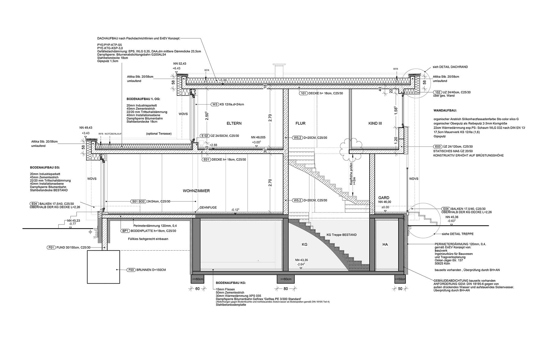
SCHNITT

 

Fotografien: Tobias Kern, Köln.

 

WHB-LOGO_Farbe