Standort
Köln
Grösse
4950qm
LPH HOAI
LP 1-5
Status
Realisiert
Jahr
2008
Bauherr
Gewerblich
KOSTEN – FUNKTION – DESIGN
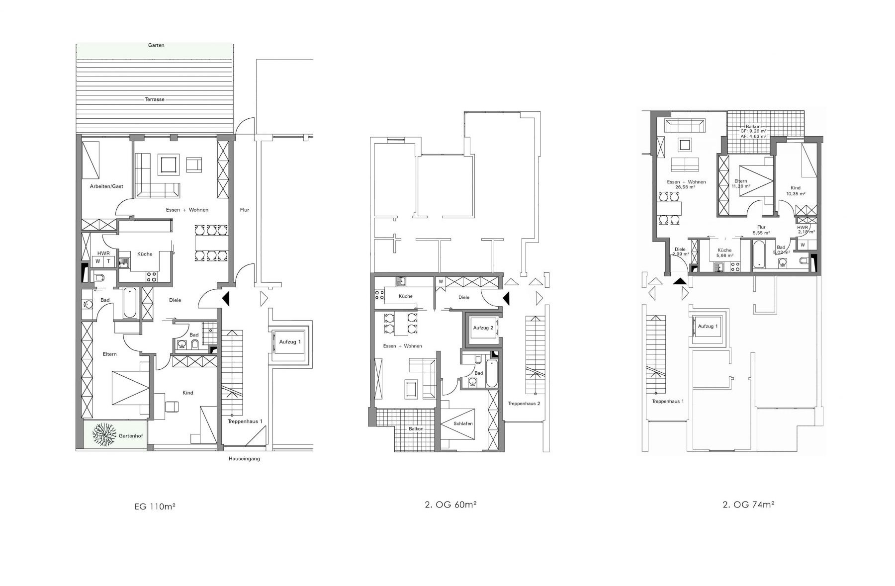
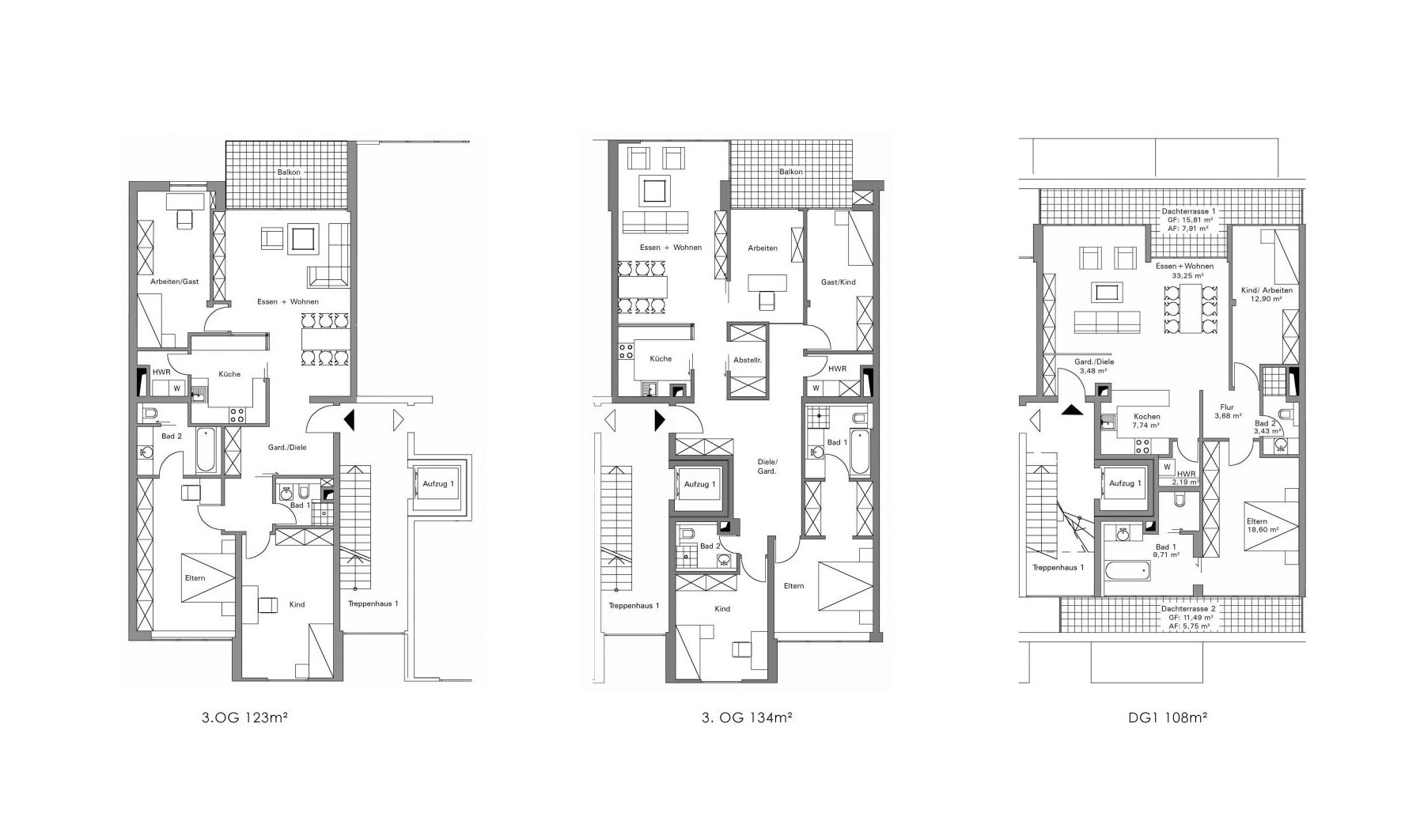
Bei der Projektentwicklung Agnesflair wurden auf vier Geschossen, drei Dachebenen sowie einer maximalen Bautiefe von bis zu 20 Metern die Grundstücksausnutzung auf ca. 5000 m² BGF optimiert.
Nahe der Agneskirche entstanden 32 Eigentumswohnungen zwischen 50 m² und 200 m² mit einer Tiefgarage.
![]()
Adresse und nachbarschaft
Der Baukörper übernimmt die nachbarlichen Höhen und Themen. Dabei verschaffen ihm seine klare Ordnung und die goldenen Erker einen besonderen Auftritt. Die Straßenfront vermeidet den Charakter eines monotonen Geschosswohnungsbaus und konzentriert sich auf Adressbildung und Identifikation.
IMPRESSIONEN NACH FERTIGSTELLUNG
Mit Klick auf das Bild erscheint das nächste Bild


