001

001   I   Sanierung & Umbau Bürogebäude

 

002

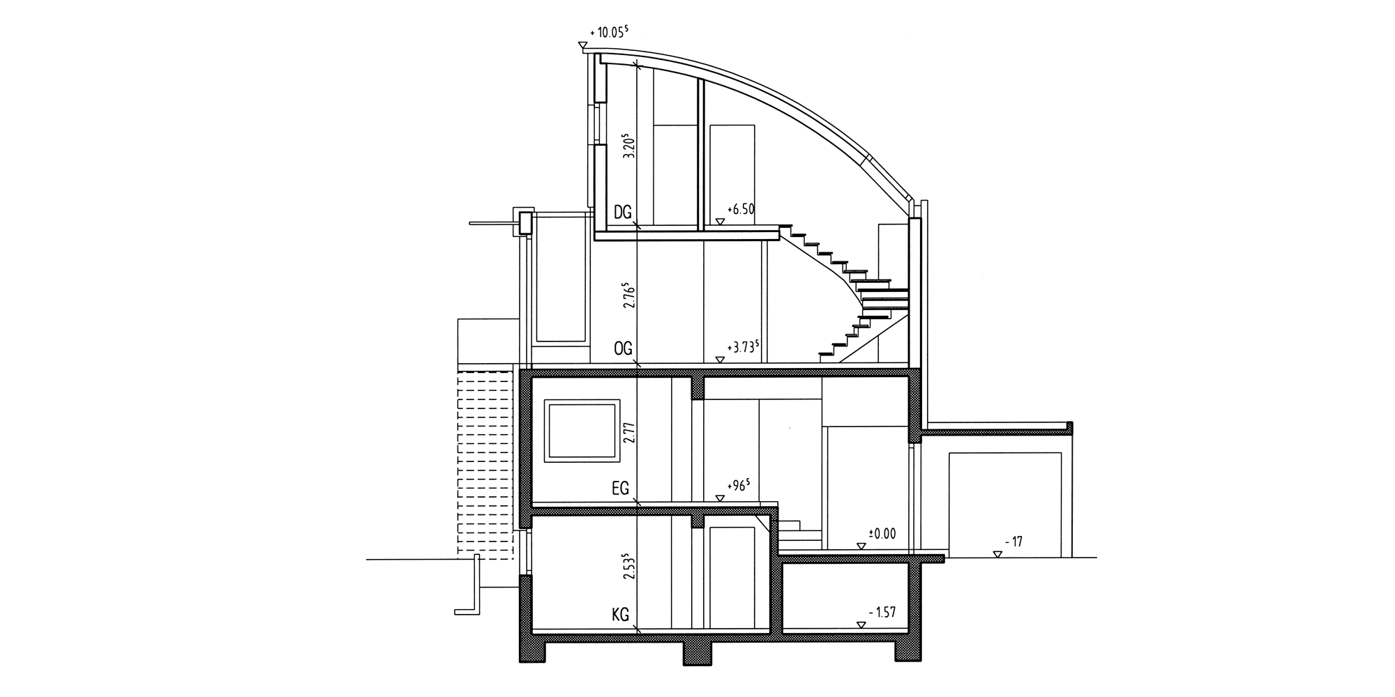
002 I Kernsanierung einer Villa in Köln – architektur – innenarchitektur

 

003

003 I mehrfamilienhaus – architektur – sichtschutz

 

004

004 I Nachverdichtung Deutzer Freiheit – Neuhöfferstr.

 

005

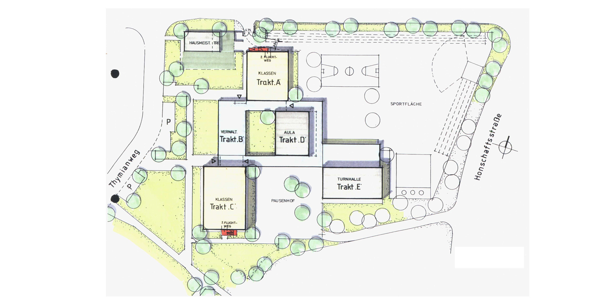
005 | schulsanierung

006

006 | licht in jeder ecke – kreuzhaus in der vulkaneifel

007

007 | fischerhaus mit hochwasserschutz

 

008

008 | umbau einer villa in düsseldorf – architektur – innenarchitektur – licht – aussenanlage 

 

009

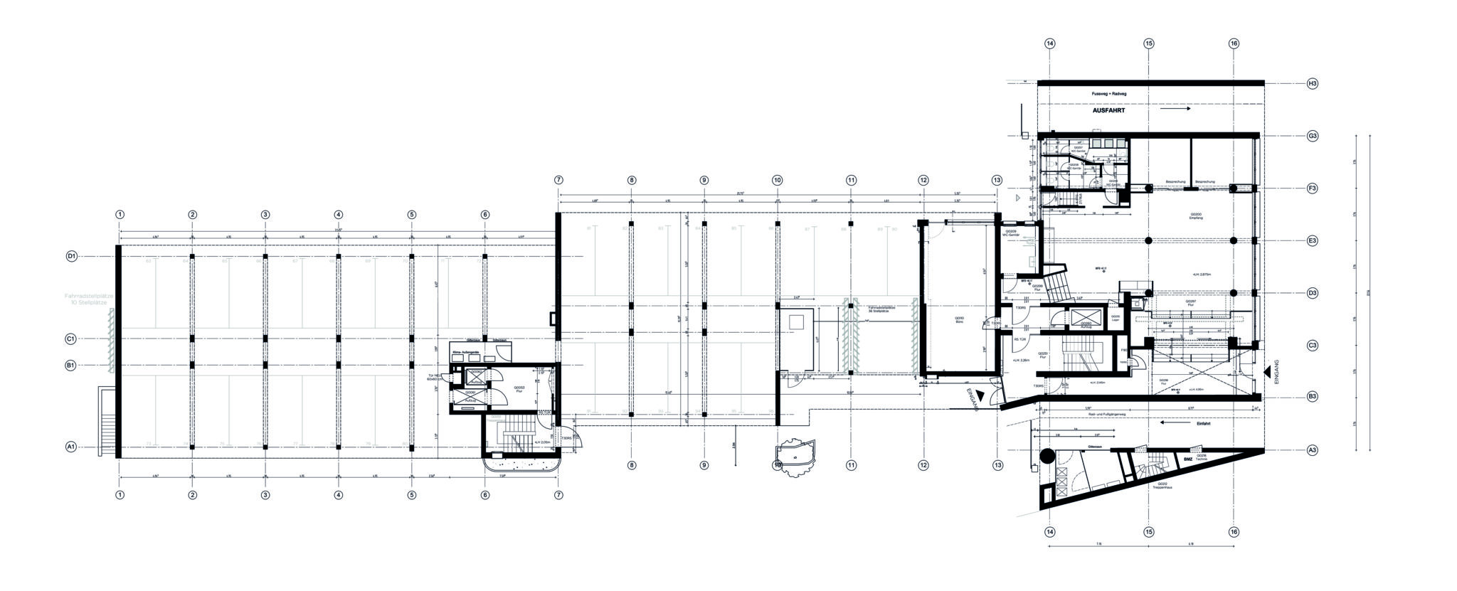
009 | erweiterung wohn- und geschäftshaus

010

010 | anbau an einfamilienhaus

 

011

011 | aufstockung bungalow

 

012

012 | kirche vingst

013

013 | Nutzungsänderung

 

014

014 | kfw energetische sanierung