Nachverdichtung im Umland

Standort

Lechenich /Erftstadt

Grösse

2039 m² Wohnen
989 m² TG

LPH HOAI

LP 1-7, + künstlerische Oberleitung

Status

Realisiert

Jahr

2020

Bauherr

JADE Bauträger GmbH

 

Kosten – Funktion – Design

Wertige Architekturqualität vom Scheitel bis zur Sohle. 17 individuelle ETW, 380 m² Terrassen + 989 m² Tiefgarage für 24 PKW. Design stand hier nicht im Vordergrund! Es ist die Form, die sich nach §34 BauBG auf dem 1309 m²  großen Grundstück gekonnt einfügt.

 

 

Städtebau

Unser Baukörper behauptet sich elegant und zugleich selbstbewusst als Vorbote des städtebaulichen Wandels. Nah am Stadtzentrum Lechenichs, trägt er mit seinen 17 Wohneinheiten auf zuvor minder genutztem – aber bereits versiegeltem Grundstück – mit geringem Flächenverbrauch zur städtebaulichen Nachverdichtung bei. Der Wohnraumbedarf sowie stark ansteigende Immobilienpreise führen hier in durchmischter Ortsrandlage Lechenichs dazu, dass Wohnnutzung
aus dem Ortskern hinaus bereits in die gewerblich genutzten Flächen hineindrängt.

 

Mit Klick auf das Bild erscheint das nächste Bild

Dach- und Fassadenbekleidung

Besondere Aufmerksamkeit verschafft sich die kristallin wirkende Dachlandschaft. Sie unterstreicht, in einheitlicher Rautenschindel gehüllt, die monolithische Gesamtwirkung des Baukörpers, der so zur Landmarke wird.
Die modern interpretierte Geometrie des Dachstuhls übernimmt die Themen aus der heterogenen Nachbarschaft.

 

Mit Klick auf das Bild erscheint das nächste Bild

 


Eine weitere Besonderheit am Bonner Ring 21 ist das zentrale Treppenhaus. Ein heller, architektonischer Raum in Sichtbeton, Holz und rohem Stahl ermöglicht Begegnungen und Kommunikation.

 

Mit Klick auf das Bild erscheint das nächste Bild

 

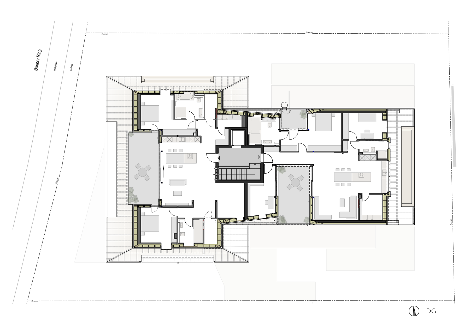
Die Wohnungen

Alle 17 Wohnungen sind großzügig konzipiert und sehr funktional geschnitten. Es gibt keine wiederkehrenden Wohnungstypen. Jede einzelne der 2-, 3- oder 4 Zimmer-Wohnungen, mit ihren 68 bis 179 qm, ist ein Unikat.
Bei der insgesamt hohen Ausstattungsqualität, stechen die raumhohen Fensteranlagen und ihre stufenlosen Zugangsmöglichkeiten zu den sehr großen Terrassen hervor.

 

Mit Klick auf das Bild erscheint das nächste Bild

 

 

 

 

Fotografien: Constantin Meyer, Köln.

 

WHB-LOGO_Farbe